Zum Verlieben schön – Die Wohnoase für Ihre Familie!





















Details
Objektdaten
(Objektnr.: 1647)
Objektart
Doppelhaushälfte
Ort
Ratingen
Nutzungsart
Wohnen
Wohnfläche
108,00 m²
Grundstücksfläche
308,00 m²
Kaufpreis
429.000 €
Käuferprovision
Provisionsfrei
Schlafzimmer
3
Badezimmer
1
Baujahr
2000
Zimmeranzahl
4
Bezug
nach Absprache
Garage-Stellplatz
1
Angaben zum Energieausweis
Befeuerungsart
Gas
Heizungsart
Fußboden
Objektbeschreibung
Sie suchen eine neuwertige Doppelhaushälfte mit moderner Ausstattung und legen Wert auf eine kinderfreundliche Umgebung? Dann haben Sie Ihr neues Zuhause gefunden. Großzügige Räume, ein Küchenbereich, der zum Essbereich geöffnet werden kann und eine Ausstattung, die den heutigen Wohnbedürfnissen Rechnung trägt, zeichnen dieses interessante Angebot aus. Überzeugen Sie sich selbst durch eine persönliche Besichtigung. Sie zahlen KEINE Käuferprovision!
Das Einfamilienhaus verfügt über die klassische Raumaufteilung einer modernen Doppelhaushälfte. Im Erdgeschoß erwarten Sie der Dielenbereich mit integriertem Gäste-WC /Dusche und Garderobe, ein sonnenlichtdurchfluteter Wohnraum und eine Küche.
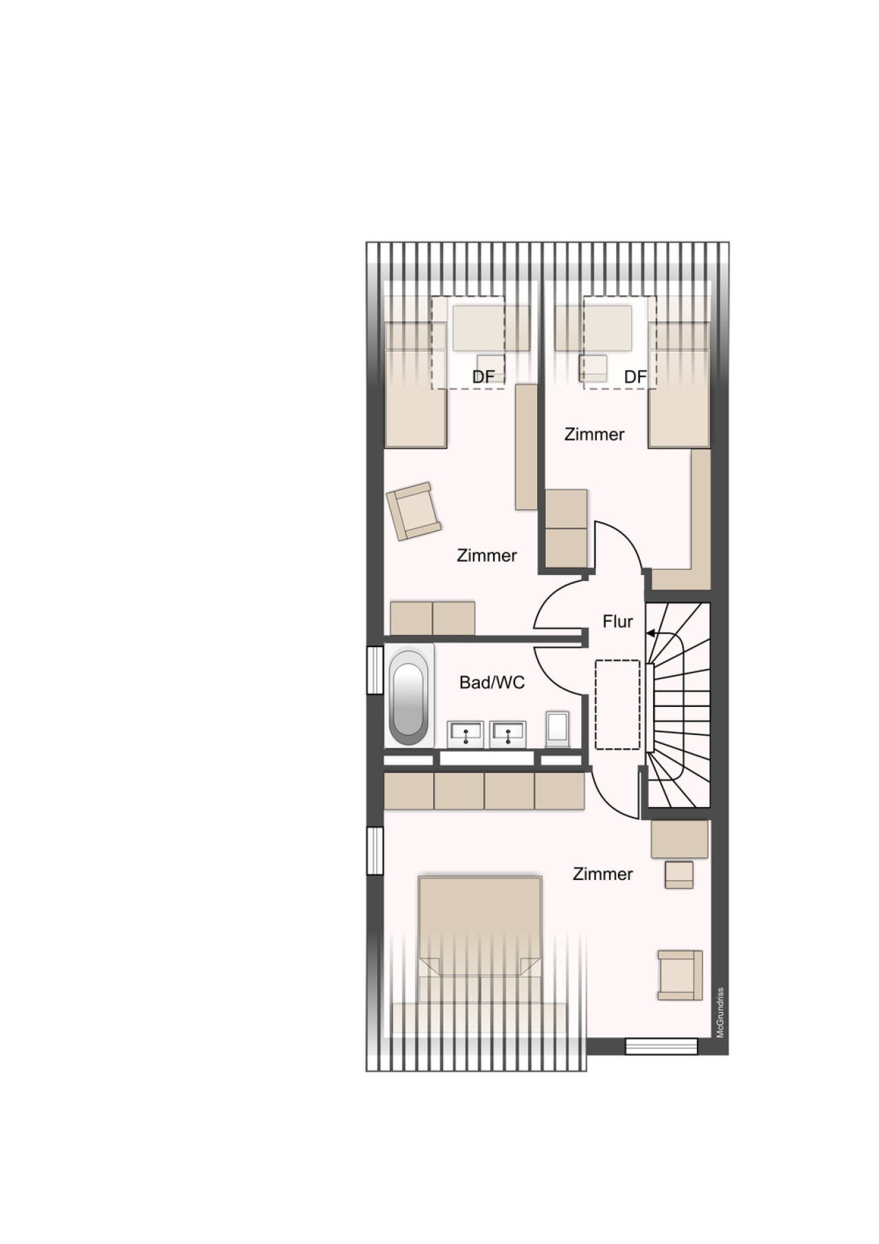
Im Obergeschoß befinden sich ein übergroßes Kinderzimmer, welches mit geringen Aufwind geteilt werden kann, um die ursprüngliche Aufteilung wiederherzustellen und somit ein zusätzliches Zimmer zu erhalten. Weiterhin erwarten Sie ein geräumiges Elternschlafzimmer und das helle Badezimmer mit Badewanne, WC und zwei Waschbecken.
Der nicht ausgebaute Spitzboden steht Ihnen als Ausbaureserve zur Verfügung und ermöglicht nach Ausbau ca. 18m² zusätzliche Wohnfläche.
Der Hobbyraum im Keller ist wohnraumähnlich ausgebaut und wurde als Homeoffice genutzt.
Das Einfamilienhaus verfügt über die klassische Raumaufteilung einer modernen Doppelhaushälfte. Im Erdgeschoß erwarten Sie der Dielenbereich mit integriertem Gäste-WC /Dusche und Garderobe, ein sonnenlichtdurchfluteter Wohnraum und eine Küche.
Im Obergeschoß befinden sich ein übergroßes Kinderzimmer, welches mit geringen Aufwind geteilt werden kann, um die ursprüngliche Aufteilung wiederherzustellen und somit ein zusätzliches Zimmer zu erhalten. Weiterhin erwarten Sie ein geräumiges Elternschlafzimmer und das helle Badezimmer mit Badewanne, WC und zwei Waschbecken.
Der nicht ausgebaute Spitzboden steht Ihnen als Ausbaureserve zur Verfügung und ermöglicht nach Ausbau ca. 18m² zusätzliche Wohnfläche.
Der Hobbyraum im Keller ist wohnraumähnlich ausgebaut und wurde als Homeoffice genutzt.
Ausstattung
Doppelhaushälfte - Massivbauweise - voll unterkellert - Kunststofffenster mit Isolierverglasung - Rollläden, im EG elektrisch - Gaszentralheizung (2014 erneuert) mit Warmwasseraufbereitung - Fußbodenheizung - Fliesenböden - zusätzlicher, wohnraumähnlich ausgebauter Raum im Keller - Garage - Keine zusätzliche Käuferprovision
Lage
Diese neuwertige und attraktive Doppelhaushälfte befindet sich in zentrumsnaher Lage von Ratingen-Lintorf, in einem kleinen und sehr beliebten Wohngebiet ca. 500m vom Ortskern entfernt. Dort finden Sie eine Vielzahl von Geschäften, Ärzten und Gastronomie-Betrieben. Kindergärten und Schulen sind ebenfalls fußläufig oder mit öffentlichen Verkehrsmitteln erreichbar. In wenigen Minuten sind Sie mit dem Auto am Breitscheider Kreuz (A3/A52/A524). Nur wenige Kilometer trennen Sie von Mülheim, Essen, Düsseldorf und Ratingen.
Sonstiges
Ridder Immobilien GmbH - Führend im Service!
Wir sind Ihre erste Adresse, wenn Sie in Ratingen und der nahen Umgebung ein Haus oder eine Eigentumswohnung verkaufen oder erwerben möchten. Nutzen Sie unsere lokale Fachkompetenz, profitieren Sie von unserem Vermarktungs Know-how und dem bundesweiten Angebotspool durch unsere exklusive Partnerschaft zum FALC Immobilien Verbund!
Wir freuen uns auf Ihren Anruf! 02102 849 746
Oder schauen Sie mal vorbei:
www.ridder-immobilien.de - Wir sind immer für Sie da!
Wir sind Ihre erste Adresse, wenn Sie in Ratingen und der nahen Umgebung ein Haus oder eine Eigentumswohnung verkaufen oder erwerben möchten. Nutzen Sie unsere lokale Fachkompetenz, profitieren Sie von unserem Vermarktungs Know-how und dem bundesweiten Angebotspool durch unsere exklusive Partnerschaft zum FALC Immobilien Verbund!
Wir freuen uns auf Ihren Anruf! 02102 849 746
Oder schauen Sie mal vorbei:
www.ridder-immobilien.de - Wir sind immer für Sie da!
Ansprechpartner
Yvonne Rotthaus
+49 (0)2102 849 746
Immobilienanfrage
Möchten Sie weitere Informationen zu dieser Immobilie?
Weitere Immobilien
Weitere aktuelle Angebote finden Sie hier. Sollte die passende Immobilie nicht dabei sein, legen wir gerne ein Suchprofil für Sie an.
Doppelhaushälfte zur Miete
40883 Ratingen - Deutschland - Nordrhein-Westfalen - Mettmann - Ratingen - Ratingen Hösel
Kaltmiete
2.500 €
Wohngrundstück zum Kauf
42579 Heiligenhaus - Deutschland - Nordrhein-Westfalen - Mettmann - Heiligenhaus - Heiligenhaus, Stadt
Kaufpreis
175.000 €
Maisonette-Wohnung zum Kauf
42579 Heiligenhaus / Hetterscheidt - Deutschland - Nordrhein-Westfalen - Mettmann - Heiligenhaus - Heiligenhaus - Hetterscheidt
Kaufpreis
198.000 €
Doppelhaushälfte zum Kauf
40822 Mettmann - Deutschland - Nordrhein-Westfalen - Mettmann - Mettmann, Stadt
Kaufpreis
495.000 €
Mehrfamilienhaus zum Kauf
40885 Ratingen / Lintorf - Deutschland - Nordrhein-Westfalen - Mettmann - Ratingen - Ratingen Lintorf
Kaufpreis
1.450.000 €
Mehrfamilienhaus zum Kauf
40885 Ratingen / Lintorf - Deutschland - Nordrhein-Westfalen - Mettmann - Ratingen - Ratingen Lintorf
Kaufpreis
1.450.000 €
Reihenmittelhaus zum Kauf
42657 Solingen - Deutschland - Nordrhein-Westfalen - Solingen
Kaufpreis
289.000 €
Etagen-Wohnung zum Kauf
40822 Mettmann - Deutschland - Nordrhein-Westfalen - Mettmann - Mettmann, Stadt - Mettmann - West
Kaufpreis
130.000 €











